Объект, 135 кв. м, Ленина, Школьная, 15

Общая площадь 135 м2
Этажность 2
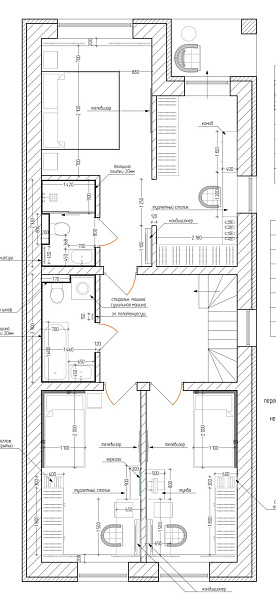
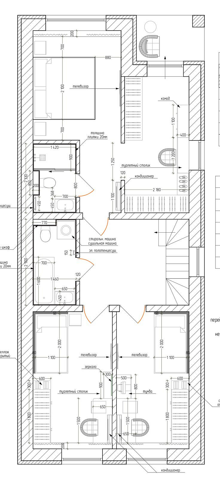
Санузел раздельный
 

ПОДХОДИТ ПОД СЕМЕЙНУЮ ИПОТЕКУ ОТ 3,9%!

Продается уютный современный дом в самом центре поселка Ленина -в живописном районе всего в 12 км от центра города.

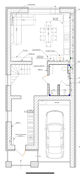
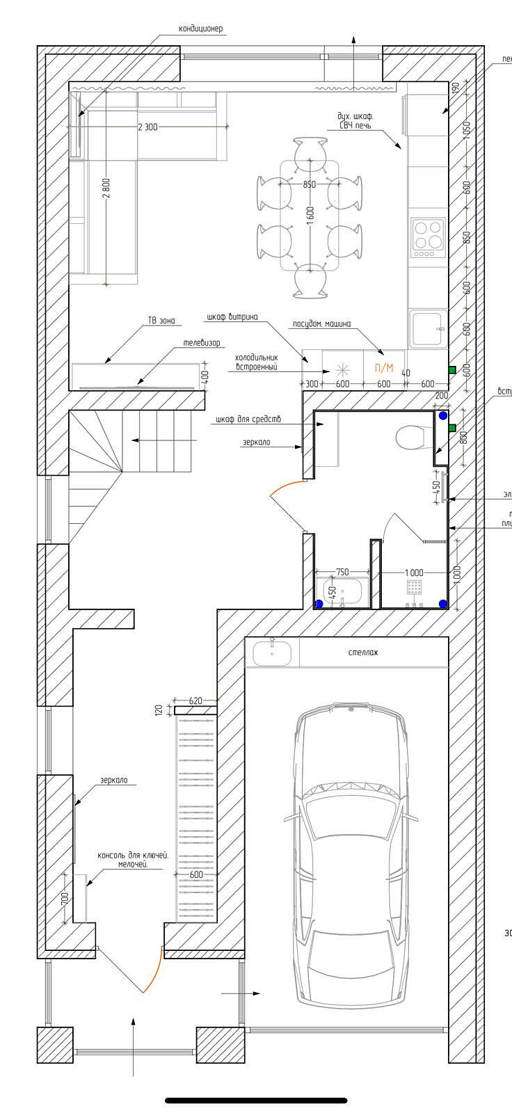
Этот просторный дом площадью 135 м² расположен на ухоженном участке площадью 3 сотки и идеально подойдет для тех, кто ценит комфорт, природу и современное качество строительства.

Основные характеристики дома:

  • Общая площадь: 134,9 м²
  • Этажность: 2 этажа
  • Комнаты: 4 просторных комнаты
  • Терраса или веранда — отличное место для отдыха и приятных прогулок
  • В доме есть санузел, газовое отопление, центральное водоснабжение и выгребная яма
  • Электричество подключено
  • Гараж для вашего автомобиля

Конструкция и материалы:

  • Фундамент: свайно-ленточный, железобетонные сваи диаметром 400 мм, глубиной 3-3,5 м, с цельно-заливной лентой
  • Стены: выполнены из одинарного керамического кирпича с утеплением минеральной ватой
  • Полы: заливная стяжка по всей площади первого этажа, теплый пол
  • ламинированные окна
  • кровля металлочерепица
  • Дом построен в 2024 году из качественного кирпича с современными коммуникациями и утеплением

Инфраструктура и транспорт:

  • В шаговой доступности магазины, аптеки, детский сад и школа
  • Удобная асфальтированная дорога обеспечивает комфортную транспортную доступность и быстрый выезд на основные магистрали

Преимущества и возможности:

  • Возможна покупка в ипотеку
  • Дом требует косметического ремонта, что позволяет реализовать собственные дизайнерские идеи и создать уникальный интерьер
  • Отличная возможность приобрести современное жилье в экологически чистом районе с развитой инфраструктурой

Не упустите шанс стать владельцем этого замечательного дома! Звоните и записывайтесь на просмотр уже сегодня!


Похожие предложения

Выгодные предложения - ловите момент!
Площадь (общ/жил/кух), м2: 87/—/—
Количество комнат: 2
Этаж: —/1
в избранное
 
Площадь (общ/жил/кух), м2: 85.71/—/—
Количество комнат: 2
Этаж: —/1
в избранное
 
Площадь (общ/жил/кух), м2: 85/—/—
Количество комнат: 3
Этаж: —/1
в избранное
 
Площадь (общ/жил/кух), м2: 116/—/—
Количество комнат:
Этаж: —/2
в избранное
 
Площадь (общ/жил/кух), м2: 84/—/—
Количество комнат: 2
Этаж: —/2
в избранное