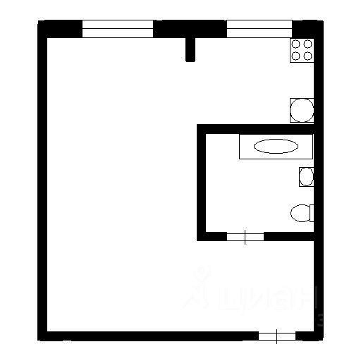
1-к квартира, 26 кв. м, проспект Победы, 144А

Количество комнат 1
Этаж 5
Общая площадь 26 м2
Этажность 9
Санузел раздельный
 

Дом кирпичный, тёплый. В квартире натяжной потолок, пластиковое окно, новая входная дверь (ремонт делали в прошлом году).

Рядом есть всё необходимое для проживания, школы, дет. сад, парк, магазины, ДК, бассейн, остановка общественного транспорта.


Похожие предложения

Выгодные предложения - ловите момент!
Площадь (общ/жил/кух), м2: 33/—/8
Количество комнат: 1
Этаж: 5/16
в избранное
 
Площадь (общ/жил/кух), м2: 25/—/6
Количество комнат:
Этаж: 16/17
в избранное
 
Площадь (общ/жил/кух), м2: 34/—/—
Количество комнат: 2
Этаж: 2/5
в избранное
 
Площадь (общ/жил/кух), м2: 25/—/5
Количество комнат:
Этаж: 4/17
в избранное
 
Площадь (общ/жил/кух), м2: 44.3/—/—
Количество комнат: 2
Этаж: 5/5
в избранное
 

Ваш персональный менеджер

Если у вас появились вопросы, напишите нам!